

106 VIVIENDAS EN BLOQUE PLURIFAMILIAR, MURCIA
El proyecto propuesto se sitúa en una zona de nuevo desarrollo urbanístico situado en la pedanía murciana Gea y Truyols que incluye la construcción de aproximadamente 1.500 viviendas acompañadas de un campo de golf y todos los servicios y equipamientos necesarios. La situación y características del entorno en el que se inserta el proyecto lo definen como una promoción orientada a segunda residencia, que presentará unos altos índices de ocupación en los meses de verano y unos índices menores en los meses fríos.
El proyecto de 106 viviendas en la parcela RB-01 es el segundo de los proyectos de edificación de dicho desarrollo urbanístico y se sitúa en el límite norte de la urbanización, con una suave pendiente hacia el sureste y vistas sobre el campo de golf en la misma dirección. Su condición de límite de la urbanización en contacto con las propiedades y terrenos vecinos constituye uno de los factores determinantes en la concepción del proyecto.
La concepción del proyecto desarrollado, por su posición dentro del conjunto, propone un tipo de borde para el conjunto de la urbanización basado en su permeabilidad. La intención de materializar una urbanización abierta y en relación con su entorno inmediato, lleva a tratar de definir un borde que permita la comunicación del interior de la urbanización con el exterior. Es por ello que, a pesar de tener que adoptar una tipología de bloque en altura definida por la normativa urbanística aplicable, la tipología concebida trata de definirse por un grado de permeabilidad visual máximo.
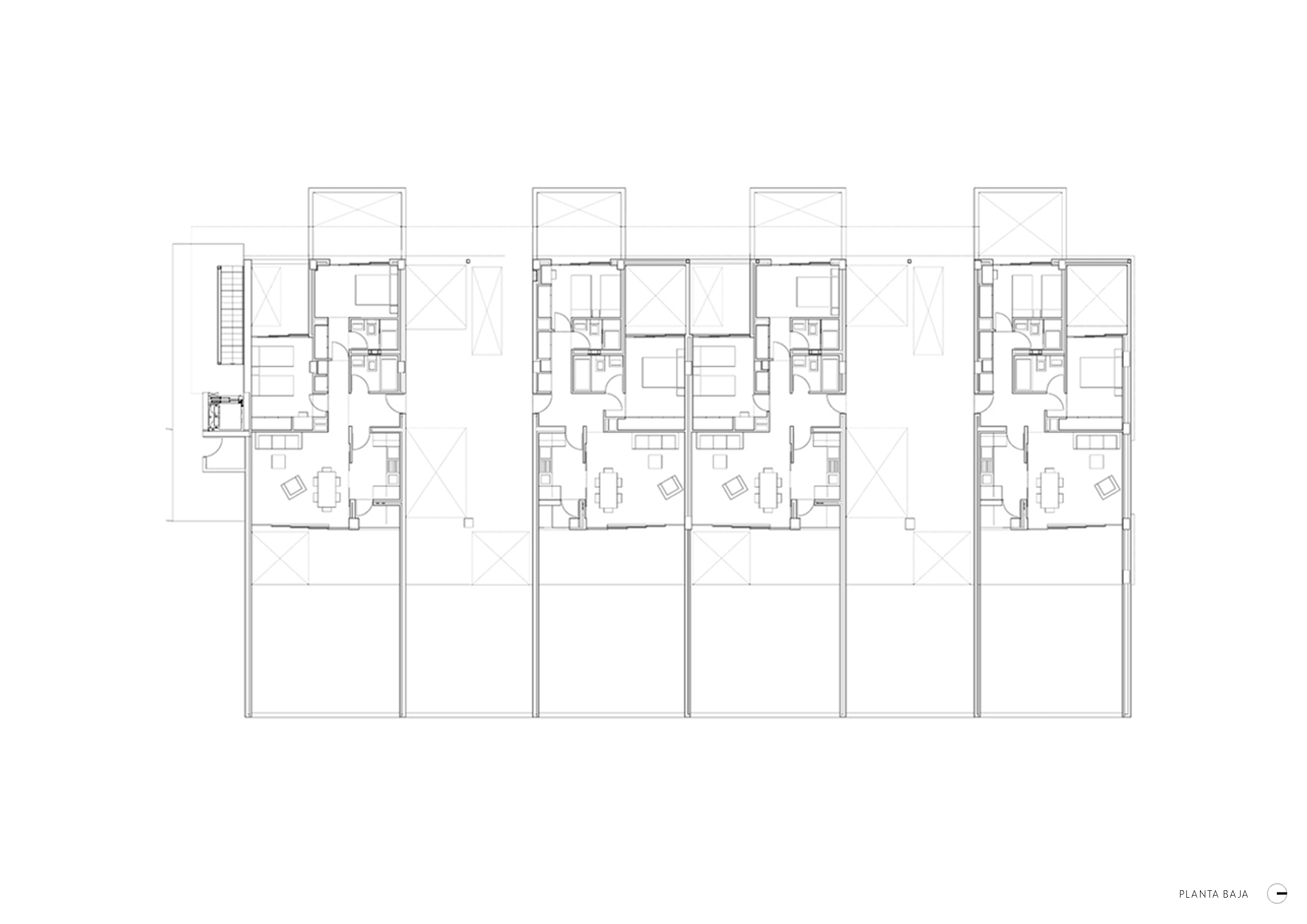
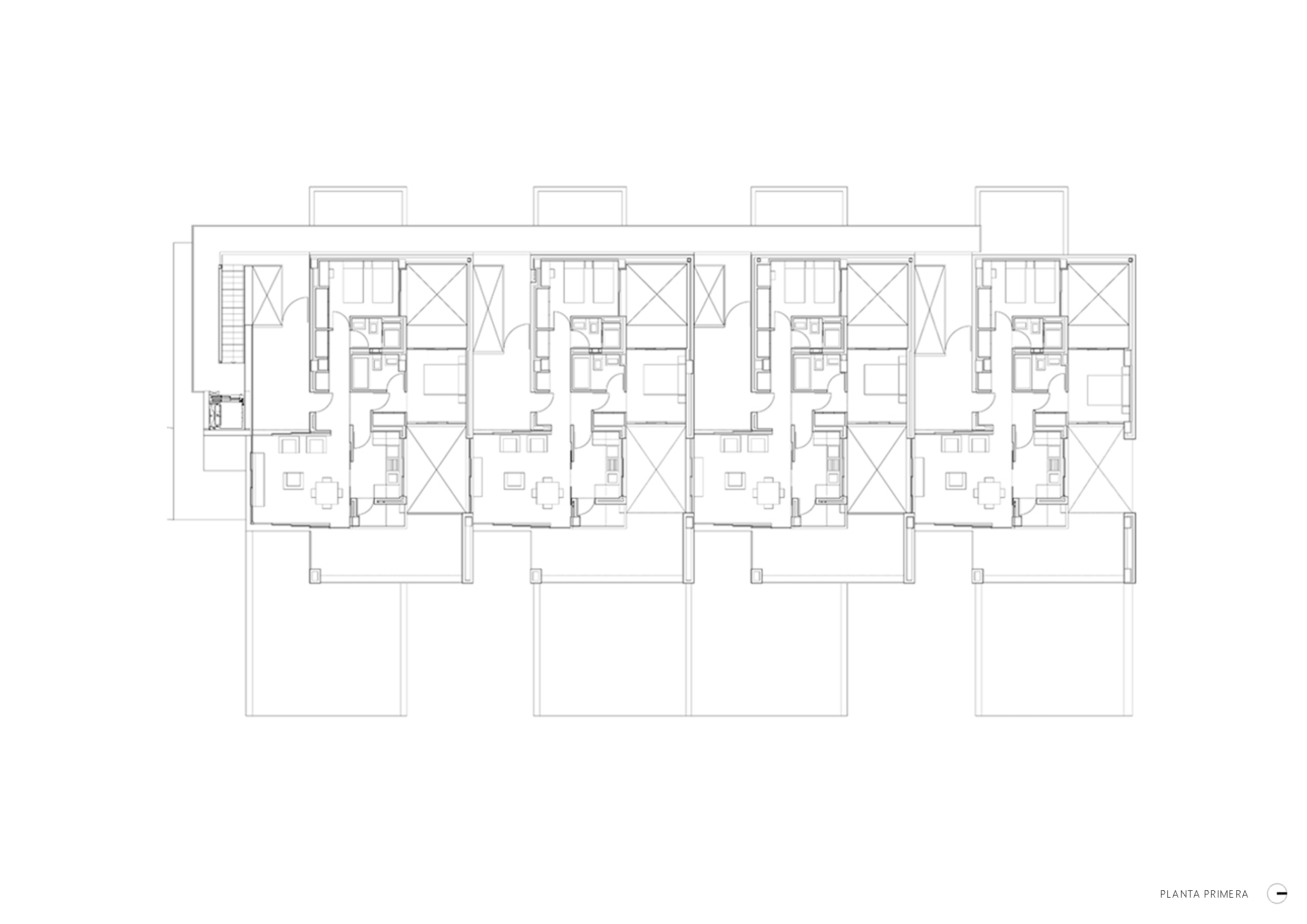
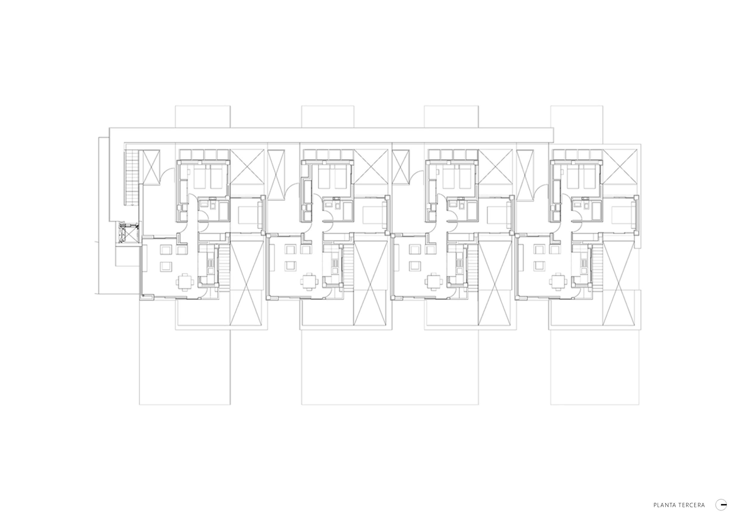
Es por ello que se procede a la agrupación de elementos opacos y a la disposición de elementos transparentes que permitan conectar visualmente el interior y exterior de la urbanización a través de la propia edificación. Del mismo modo, se prevén en planta baja amplios pasos libres que permitan el paso al interior de la parcela y la visión sobre el campo de golf para los usuarios de los viales perimetrales de la urbanización. Por ello, el alzado de la agrupación se convierte en una ordenación de elementos transparentes y opacos en el que la composición volumétrica trata de dotar al conjunto de una escala menor y más acorde al entorno en el que se sitúa.
La tipología de bloque concebido trata de trasladar a la vivienda en bloque plurifamiliar aislado características propias de la vivienda unifamiliar aislada al disponer de espacios exteriores de distintos caracteres vinculados a los distintos espacios interiores de la vivienda.
Localización:
La Tercia, Gea y Truyols. Murcia. España.
Año:
2006
Uso:
Residencial vivienda
Procedimiento:
Promoción privada
Promotor:
Resort 3 Molinos S.L.
Fases desarrolladas:
Proyecto Básico y de Ejecución
Superficie parcela:
19.392 m²
Superficie construida:
13.997 m²
Número de viviendas:
106
Pem:
4.125.234,94 €
Presupuesto contrata:
5.694.474 €
Equipo redactor:
MCEA | Arquitectura
Colaboradores:
Oliver König, Daniel Ruiz Zurita, Paola Vargas Hermosa, Pablo Franco y Raquel Calvo
Estructura: Francisco Cerezo
Infografías: Oliver Hadfield







