

















CENTRO DEPORTIVO EN BENIAJÁN, MURCIA
En abril de 2008 se convoca el concurso para la redacción de proyecto, construcción y explotación de un centro deportivo en la pedanía murciana de Beniaján. En la convocatoria del concurso se define un modelo de centro basado en un uso principal de piscina climatizada y opcionalmente, usos secundarios de actividades indoor. No obstante, este programa se muestra insuficiente para satisfacer la necesidad y demanda existentes de espacios deportivos cualificados de la pedanía.
La parcela definida para su ubicación presenta como singularidad el aislamiento y la ausencia de contacto con espacio público alguno, encontrándose rodeada en todo su perímetro por propiedades privadas destinadas en su mayor parte al cultivo de árboles frutales, por lo que, se solicita la inclusión en el proyecto de un vial que lo conecte con la carretera de Beniaján y que constituirá el único punto de contacto con el espacio público.
La propuesta presentada trata de constituirse en el centro deportivo de referencia no sólo de la pedanía de Beniaján, sino de las pedanías vecinas y de los barrios del este de Murcia. Para ello, se concibe como un espacio abierto no sólo a socios, sino a la población en general, constituyendo en si un espacio público con múltiples actividades vinculadas.
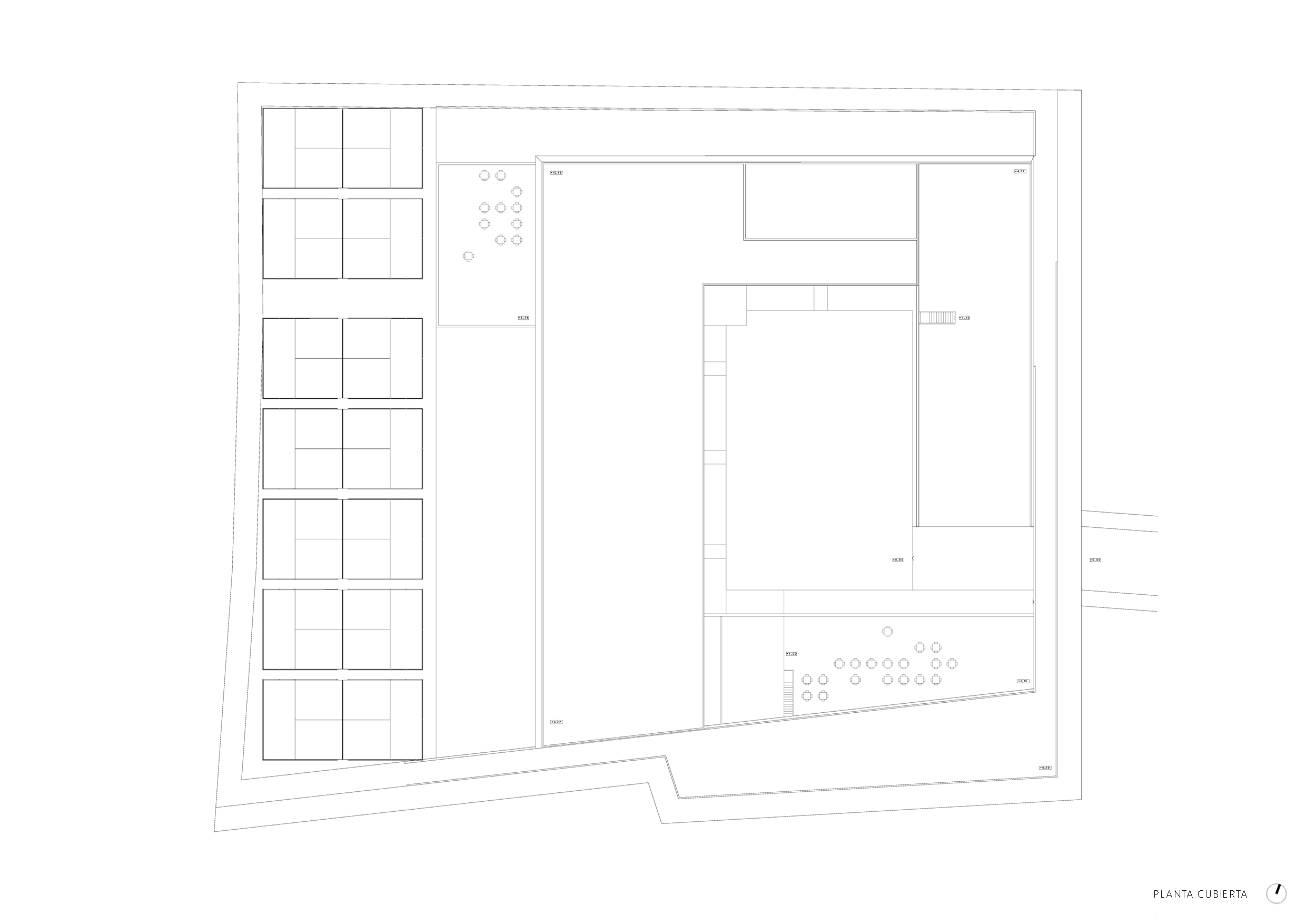
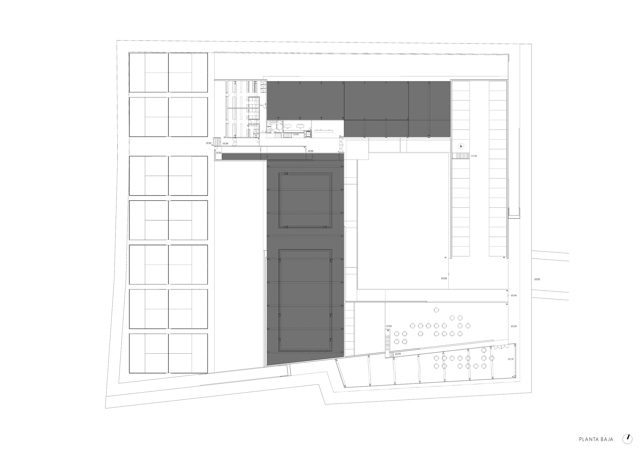
Su concepción se basa en la disposición de un espacio público abierto y accesible, susceptible de ser ocupado por las actividades desarrolladas en el centro, convirtiéndose en el punto de contacto y difusión de dichas actividades con el público en general. También a modo de espacio público abierto, se dispone la construcción de una zona de carrera libre exterior en todo el perímetro de la parcela, equipada con zonas de estiramientos y conectada con la red de espacios verdes públicos de los que dispone la pedanía.
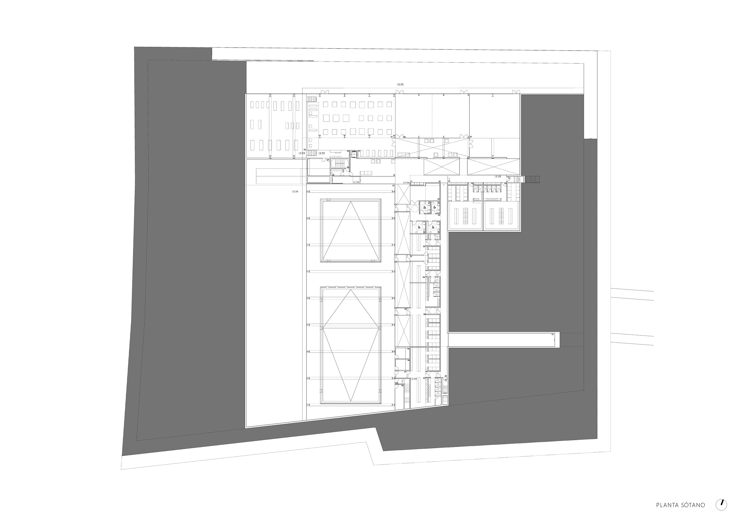
Los espacios de actividades indoor y piscina se disponen como envolvente del espacio público central siguiendo un esquema lineal y situándose en una cota inferior. De este modo, a cada uno de los espacios interiores de los que dispone el centro, se le adjudica un espacio exterior acondicionado para la actividad deportiva que corresponda, permitiendo así trasladar cada una de ellas a un espacio exterior siempre que las condiciones climatológicas lo permitan. Se pretende así obtener una importante reducción de la demanda energética del centro al fomentar el máximo aprovechamiento de las adecuadas condiciones climatológicas de la zona durante la mayor parte del año.
El recorrido perimetral de carrera libre exterior se materializa con tramos de distintas pendientes que permita un mayor trabajo cardiovascular mediante la elevación de su vértice sureste, definiendo de este modo la entrada al recinto del complejo deportivo y constituyendo la cubierta de un espacio destinado a uso comercial vinculado al espacio público central. Del mismo modo, la elevación del vértice noroeste de la edificación, marcará la entrada a la zona de piscina y actividades indoor.
La disposición de todas las actividades interiores en un nivel inferior al de la entrada, permite la visión panorámica de todas las actividades realizadas en el centro tanto a los visitantes como al personal del puesto de control situado en la recepción. La utilización un esquema lineal que ordene todas las actividades interiores del complejo (piscina y salas) permite la optimización del uso de luz y la renovación natural del aire, pudiendo utilizar los espacios interiores como espacios abiertos en función de las condiciones climatológicas existentes en cada momento.