bacan4d

VELATORIO DEL CARMEN, TORREAGÜERA | MCEA
Generic selectors
Exact matches only
Search in title
Search in content
Post Type Selectors
MCEA_VELATORIO_ARQUITECTURA_ARQUITECTOS_MURCIA_IMG2MCEA_VELATORIO_ARQUITECTURA_ARQUITECTOS_MURCIA_IMG2
Nuevo tanatorio en la Torreagüera.Nuevo tanatorio en la Torreagüera.
Nuevo tanatorio en la Torreagüera.Nuevo tanatorio en la Torreagüera.
Nuevo tanatorio en la Torreagüera.Nuevo tanatorio en la Torreagüera.
Nuevo tanatorio en la Torreagüera.Nuevo tanatorio en la Torreagüera.
Nuevo tanatorio en la Torreagüera.Nuevo tanatorio en la Torreagüera.
Nuevo tanatorio en la Torreagüera.Nuevo tanatorio en la Torreagüera.
Nuevo tanatorio en la Torreagüera.Nuevo tanatorio en la Torreagüera.
Nuevo tanatorio en la Torreagüera.Nuevo tanatorio en la Torreagüera.
Nuevo tanatorio en la Torreagüera.Nuevo tanatorio en la Torreagüera.
Nuevo tanatorio en la Torreagüera.Nuevo tanatorio en la Torreagüera.
Nuevo tanatorio en la Torreagüera.Nuevo tanatorio en la Torreagüera.
Nuevo tanatorio en la Torreagüera.Nuevo tanatorio en la Torreagüera.
Nuevo tanatorio en la Torreagüera.Nuevo tanatorio en la Torreagüera.
Nuevo tanatorio en la Torreagüera.Nuevo tanatorio en la Torreagüera.
Nuevo tanatorio en la Torreagüera.Nuevo tanatorio en la Torreagüera.

VELATORIO DEL CARMEN, TORREAGÜERA

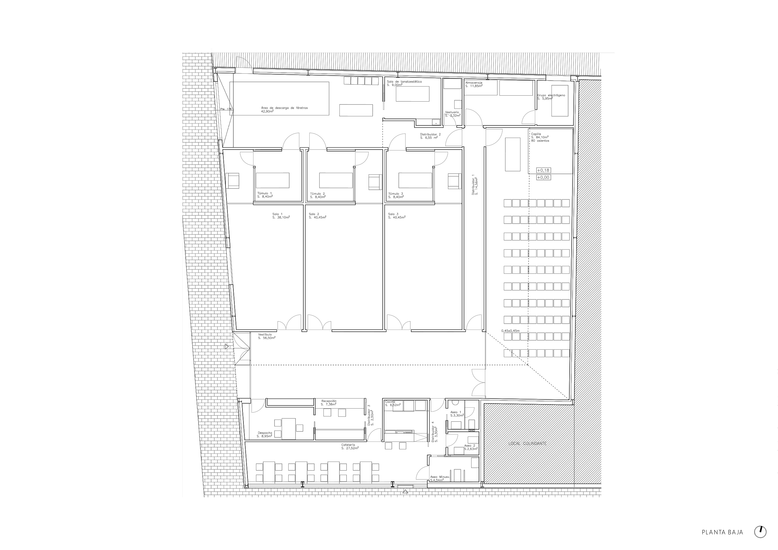
El proyecto del TANATORIO DEL CARMEN en Torreagüera consistió en la reforma de un local incluido en una edificación ya existente de tipo industrial para la implantación de un programa de usos que incluye 3 salas de velación, una capilla, cafetería y espacios de uso interno del personal.

La tipología industrial del espacio a reformar condicionó de manera sustancial la concepción del proyecto desde su fase inicial, al requerir de la utilización de técnicas y recursos propios de la construcción industrial para la concepción de espacios con importantes connotaciones de la arquitectura doméstica y religiosa tradicional. Este intento de fusión de las técnicas de construcción industrial con espacios interiores de carácter doméstico y religioso se hace visible en dos aspectos fundamentales:

– Por un lado, el sistema de iluminación natural de las salas de velación y de la capilla se resuelve mediante captadores de luz de carácter industrial (SOLATUBE), que se convierten en uno de los elementos más relevantes del proyecto al constituir el principal elemento de singularización del altar de la capilla.

– Por otro lado, la desvinculación de los nuevos usos respecto a los usos ya existentes en la edificación (comercio) se busca mediante el tratamiento de la fachada que, si bien mantiene el color blanco del conjunto, introduce una matización mediante un rallado vertical conseguido mediante la superposición de un revestimiento con perfil arquitectónico nervado perforado que permite unificar la totalidad de la fachada del local.

La relación de los espacios interiores de la edificación con el espacio público se estructura en dos categorías:

– Un espacio de reunión y encuentro totalmente abierto visualmente a la vía pública, concebido como prolongación de ésta, constituye el vestíbulo general de las salas de velación y capilla.

– Los restantes espacios, es decir, salas de velación y cafetería, están dotados de un mayor grado de recogimiento y privacidad mediante su ocultación de la vía pública mediante la interposición del acabado perforado de fachada a modo de celosía.

Localización:
Torreagüera, Murcia

Año:
2019

Uso:
Funerario. Comercial

Procedimiento:
Promoción Privada

Promotor:
Funeraria del Carmen S.L.

Clasificación de suelo:
Suelo Urbanizable Sectorizado

Fases desarrolladas:
Proyecto Básico y de Ejecución y Dirección de Obra

Superficie construida:
500 m²

Equipo redactor:
MCEA | Arquitectura