





















































RECONSTRUCCIÓN RESIDENCIAL SAN MATEO, LORCA
El terremoto sufrido por la ciudad de Lorca el 11 de mayo de 2011 produjo la afección de un porcentaje muy alto de las edificaciones existentes. Como consecuencia de dichas afecciones un número importante de edificaciones fueron demolidas en los meses posteriores al seísmo, especialmente en el barrio de La Viña.
El antiguo Residencial San Mateo se situaba en la avenida Juan Carlos I, una de las vías principales de la ciudad de Lorca, y constituía una de sus edificaciones más emblemáticas tanto por su especial configuración con un espacio central abierto a la avenida como por su historia y posición social de sus propietarios. Debido a las patologías ocasionadas por el terremoto del 11 de mayo, en julio de 2011 se procede a su completa demolición.
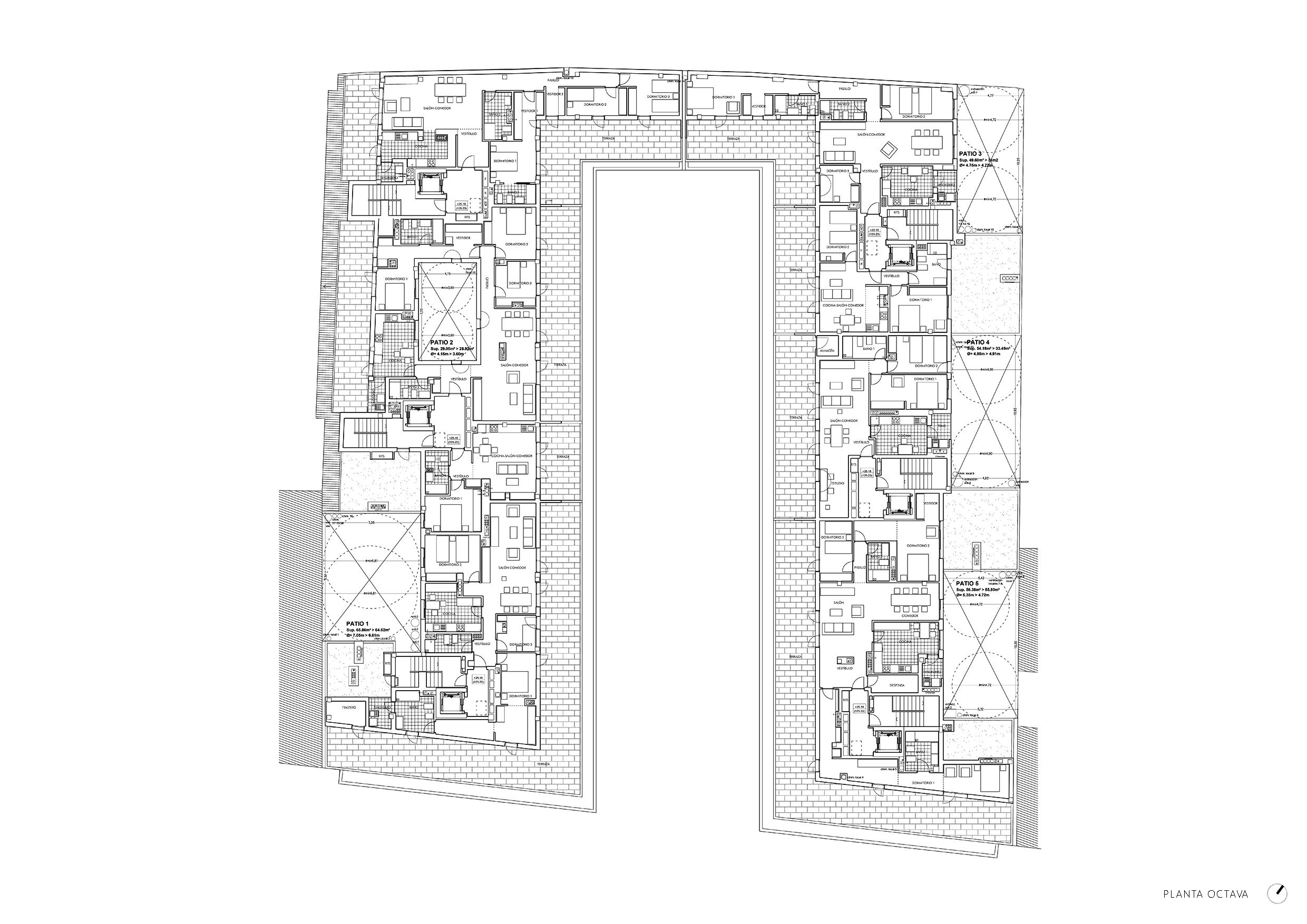
En octubre de 2011 la Comunidad de Propietarios del Residencial convoca un concurso de ideas a través del cual seleccionar el proyecto más adecuado para llevar a cabo la reconstrucción de sus viviendas. En las bases del concurso se condiciona el diseño de los proyectos mediante la exigencia de establecer una estructura de la propiedad igual a la preexistente en la edificación original, es decir, 6 portales de acceso a las viviendas y 12 viviendas por planta (2 por portal) de modo que cada uno de los propietarios pudiese recuperar la posición que previamente había ocupado dentro del conjunto. Por tanto, el concurso convocado solicitaba como principal reto el diseño de un espacio para unos habitantes que ya habían habitado ese mismo espacio durante un largo período.
La propuesta presentada definió al proyecto arquitectónico como el instrumento capaz de conseguir el consenso necesario entre todos los propietarios del edificio para hacer viable su reconstrucción. Para ello, se define como fundamental incorporar en el proceso de proyecto las experiencias y distintas formas de habitar que cada uno de ellos desarrolló en sus viviendas a lo largo del tiempo, de forma que el proceso de reconstrucción y ocupación de las nuevas viviendas se realice de la manera menos traumática posible. Además de las experiencias pasadas, se ofreció a los propietarios la posibilidad de incorporar al proyecto sus necesidades actuales y futuras, planteando un esquema flexible que permite en un gran número de casos la posibilidad de diseño de una única vivienda o de dos de menores dimensiones.
El primer paso del proceso de proyecto desarrollado incorporó a todos y cada uno de los propietarios de forma individual en el propio proceso y en el equipo de diseño, mediante unas primeras sesiones de trabajo que trataron de definir las necesidades individuales de cada uno de ellos mediante la cumplimentación de fichas en las que reflejar todos aquellos comentarios y propuestas de distribución que considerasen oportunas. Desde un primer momento, todos los propietarios mostraron su disposición a tomar parte de forma activa en el proceso, recibiendo por su parte un número importante de propuestas de distribución y facilitando de ese modo el conocimiento de las necesidades y la forma de habitar de cada uno de ellos. Tras el análisis y clasificación de toda la información recibida se inició un proceso de diseño de tipologías de vivienda que, siendo configuradas según las propuestas individuales de distribución recibidas, compatibilizaron todas las propuestas situadas en la misma vertical.
Una vez definidos estos modelos de vivienda, se desarrolló una segunda fase de trabajo en la que se facilitó a cada uno de los propietarios las distintas tipologías definidas en la vertical de su vivienda con el fin de seleccionar aquella que mejor se adaptase a sus necesidades. A partir de estas tipologías, cada uno de los propietarios introdujo en el proyecto aquellas modificaciones puntuales que consideró necesarias, recogiéndose en el proyecto definitivo un número de 45 tipologías de vivienda diferentes y consiguiendo de ese modo la aceptación e identificación de los propietarios con el proyecto desarrollado conjuntamente.
El tipo de proceso desarrollado, que incorpora la voluntad individual de cada propietario en la ordenación del conjunto, trata de reflejarse en la fachada mediante un sistema ordenado de contraventanas en el que esa voluntad individual de cada uno de los habitantes del edificio modifica la composición general, obteniendo de ese modo una imagen de la edificación en permanente cambio y adaptada a las necesidades individuales de cada uno de ellos.
Localización:
Avda. Juan Carlos I, 39-49. Lorca. Murcia. España.
Año:
2016
Uso:
Residencial vivienda. Comercial. Aparcamiento.
Procedimiento:
Concurso de ideas
Clasificación:
1º puesto
Promotor:
Comunidad de copropietarios Residencial San Mateo
Fases desarrolladas:
Proyecto Básico y de Ejecución y Dirección de Obra
Superficie parcela:
2.749,69 m²
Superficie construida:
23.802,30 m²
Número de viviendas:
96
Pem:
10.972.037,82 €
Presupuesto contrata:
13.056.725,01 €
Equipo:
MCEA | Arquitectura
Naos 04 Arquitectos S.L.P
Colaboradores:
Telecomunicaciones: DM Ingeniería
Acústica: Sonen
Instalaciones: Juan Manuel Vázquez Sánchez y ATP Ingenieros
Estructura: José Antonio Hernández Cañadas, QL Ingeniería y ALIVA Ingenieros
Dirección de Ejecución: Acrópolis Arquitectura
Empresa constructora:
UTE Dragados-Tecopsa












